“A working platform is perfect for applications at great height. As people work on it, quality and stability are particularly important."
HAB offers only high-quality products. We attach great importance to a stable construction, ease of maintenance, a compact design and power. Quality components such as modern engines make electric platforms more efficient, and our diesel devices are low in emissions thanks to a particulate filter.
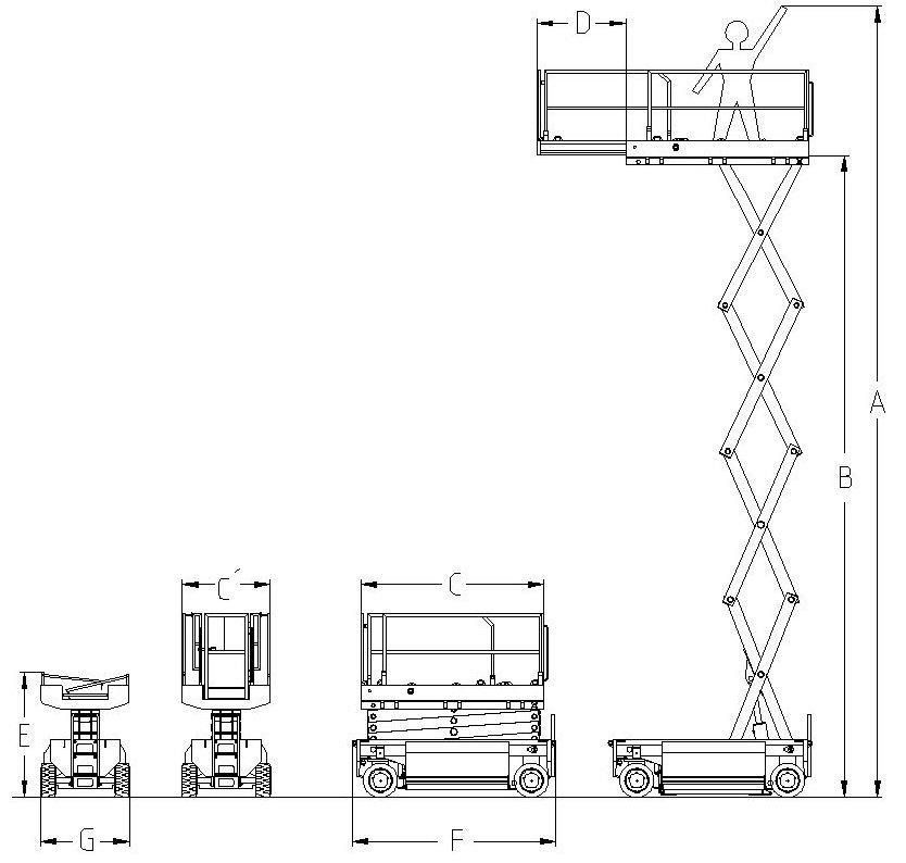
Electric scissor lift
| S 280-12E4WDS AC | Technical specifications | 
|---|---|
| Arbeitshöhe I Working height (A) | 28.00 m | 
| Plattformhöhe I Platform height (B) | 26.00 m | 
| Plattform Abmessung I Platform size (C) | 5.10 m x 1.20 m | 
| Plattformverlängerung I Platform extension (D) | 1.90 m | 
| Radstand I Wheelbase | 4.10 m | 
| Bodenfreiheit I Ground clearance | 200 mm | 
| Max. Bodendruck pro Rad I Max ground bearing pressure per wheel | 137 N/cm² | 
| Nennlast I Capacity | 600 kg | 
| Verfahrbar bis I Driveable in | full height | 
| Fahrgeschwindigkeit in km/h (e/a) I Drive speed in km/h (l/e)** | 3.0/0.7 | 
| Äußerer Wenderadius I Outer turning radius | 3.50 m | 
| Innerer Wenderadius I Inner turning radius | 0.60 m | 
| Antriebsart I Drive | E | 
| Akkus/ Verbrennungsmotor I Engine | 80V/560Ah | 
| Hubzeit I Lifting time | Ca. 90 Sec | 
| Senkzeit I Lowering time | Ca. 90 Sec | 
| Max. Neigung I Max. inclination | 0° / 1° | 
| Steigfähigkeit I Gradeability | Ca. 25 % | 
| Eigengewicht I Weight | 15950 kg | 
| Außeneinsatz I External use | ● | 
| Allradantrieb I 4WD | ● | 
| Allradlenkung I 4WS | ● | 
| Abstützung I Outrigger | ● | 
| Transporthöhe I Stowed height (E) | 3.18 m | 
| Transportlänge I Length (F) | 5.55 m | 
| Transportbreite I Width (G) | 1.25 m | 
Click on the QR code and download the data sheet
This model is also available as a wide (2.50 m) electric and diesel version.
Weitere Informationen über HAB Engineering GmbH finden Sie unter/ Please find further information about HAB Engineering GmbH on www.hab-sales.com. I *Technische Daten und Illustrationen können ohne vorherige Ankündigung oder Verbindlichkeit geändert werden. /All technical features, descriptions and illustration are subject to change without prior notice. I **e = eingefahren / a = ausgefahren I e =elevated / l =lowered. I Kontakt/Contact: info@hab-sales.com
 
 

