„Eine Arbeitsbühne ist perfekt für Arbeiten in der Höhe. Da Menschen darauf arbeiten ist Qualität und Stabilität entscheidend.“
Bei HAB finden Sie erstklassige und hochwertige Arbeitsbühnen, die sich vom Standard unterscheiden. Wir legen großen Wert auf eine stabile Konstruktion, Wartungsfreundlichkeit, ein kompaktes Design und Power. Durch Qualitätskomponenten wie bspw. moderne Motoren werden Elektrobühnen effizienter und durch die Ausstattung mit einem Rußpartikelfilter sind unsere Dieselgeräte emissionsarm.
Elektroscherenbühne
| S 195-12E4WDS AC | Technische Spezifikationen |
|---|---|
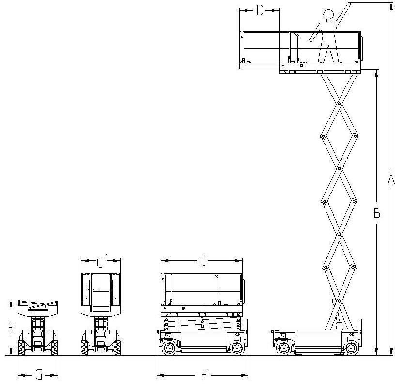
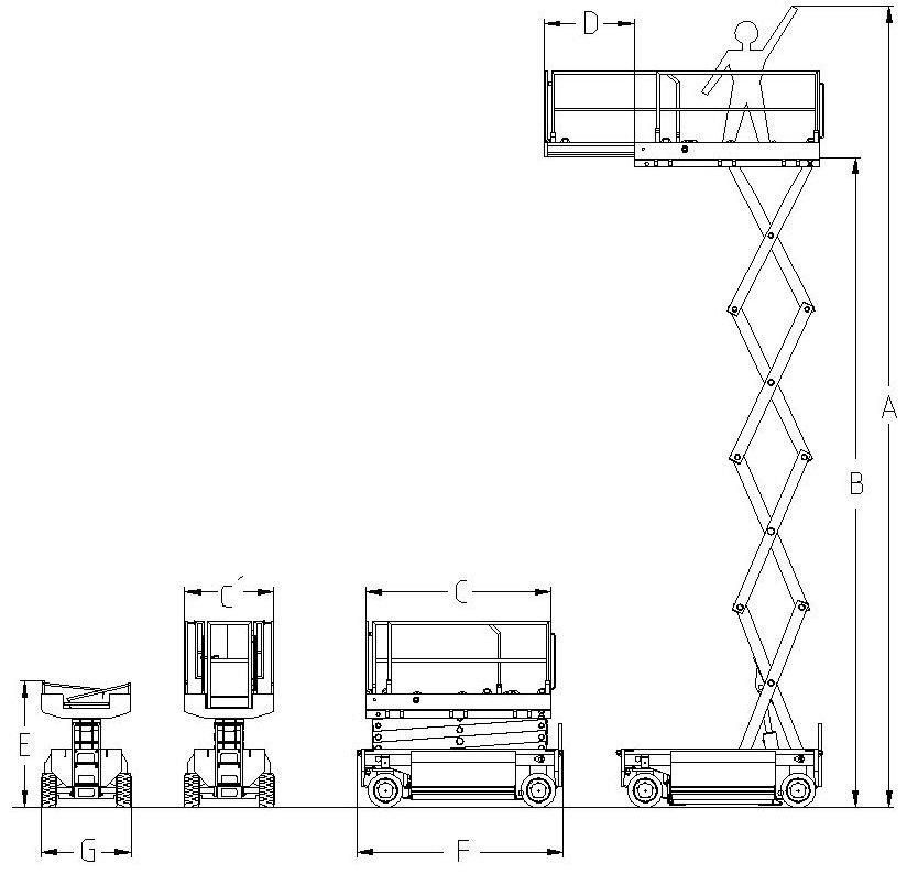
| Arbeitshöhe I Working height (A) | 19.50 m |
| Plattformhöhe I Platform height (B) | 17.50 m |
| Plattform Abmessung I Platform size (C) | 4.30 m x 1.20 m |
| Plattformverlängerung I Platform extension (D) | 1.80 m |
| Radstand I Wheelbase | 3.14 m |
| Bodenfreiheit I Ground clearance | 200 mm |
| Max. Bodendruck pro Rad I Max ground bearing pressure per wheel | 101 N/cm² |
| Nennlast I Capacity | 600 kg |
| Verfahrbar bis I Driveable in | volle Höhe |
| Fahrgeschwindigkeit in km/h (e/a) I Drive speed in km/h (l/e)** | 3.5/0.7 |
| Äußerer Wenderadius I Outer turning radius | 2.50 m |
| Innerer Wenderadius I Inner turning radius | 0.50 m |
| Antriebsart I Drive | E |
| Akkus/ Verbrennungsmotor I Engine | 48V/540Ah |
| Hubzeit I Lifting time | Ca. 52 Sec |
| Senkzeit I Lowering time | Ca. 56 Sec |
| Max. Neigung I Max. inclination | 0° / 1° |
| Steigfähigkeit I Gradeability | Ca. 25 % |
| Eigengewicht I Weight | 10300 kg |
| Außeneinsatz I External use | ● |
| Allradantrieb I 4WD | ● |
| Allradlenkung I 4WS | ● |
| Abstützung I Outrigger | ● |
| Transporthöhe I Stowed height (E) | 2.72 m |
| Transportlänge I Length (F) | 4.60 m |
| Transportbreite I Width (G) | 1.25 m |
QR-Code anklicken und das Datenblatt als
PDF downloaden
Dieses Modell gibt es auch als breite (2,50 m) Elektro- und Dieselvariante.
Weitere Informationen über HAB Engineering GmbH finden Sie unter/ Please find further information about HAB Engineering GmbH on www.hab-sales.com. I *Technische Daten und Illustrationen können ohne vorherige Ankündigung oder Verbindlichkeit geändert werden. /All technical features, descriptions and illustration are subject to change without prior notice. I **e = eingefahren / a = ausgefahren I e =elevated / l =lowered. I Kontakt/Contact: info@hab-sales.com


